大家族やペット飼育の方におすすめの6LDK3階建てルーフバルコニー付き。隣が雑木林で静かです。
- 価格
- 900万円
- 中古戸建
- 間取
- 6LDK
|
|
| 所在地 | 和歌山県和歌山市塩屋6丁目 塩屋6丁目戸建3階建て |
|---|---|
| 交通 | JR紀勢本線 紀三井寺駅 徒歩2560m 和歌浦中央病院前バス停徒歩2分 |
物件概要
| 築年月 | 1992/12 | 新築/中古 | 中古 |
|---|---|---|---|
| 面積 | 123.38m² | 計測方式 | |
| バルコニー | 向き | 南東 | |
| 建物階数 | 地上3階 | 部屋階数 | |
| 部屋/区画番号 | 総戸/区画数 | 1 | |
| 建物構造 | 鉄骨造 | ||
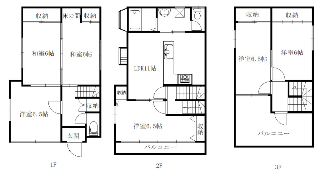
| 間取内容 |
LDK 11畳 2階 1室 洋室 6.5畳 1階 1室 和室 6畳 1階 2室 洋室 6.5畳 2階 1室 洋室 6.5畳 3階 1室 洋室 6畳 3階 1室 |
||
| 駐車場 | 無 駐車スペースあり | 取引態様 | 専任 |
| 引渡/入居時期 | 相談 | 現況 | 居住中 |
| 地目 | 宅地 | 用途地域 | 第二種中高層住居専用地域 |
| 都市計画 | 市街化区域 | 地勢 | 平坦 |
| 土地面積 | 90.96m² | 土地面積計測方式 | 公簿 |
| セットバック | 無 | セットバック量 | |
| 建ぺい率 | 60% | 容積率 | 200% |
| 土地権利 | 所有権 | 接道状況 | 一方 |
| 接道方向1 | 南東 | 接道間口1 | 8.8m |
| 接道種別1 | 私道 | 接道幅員1 | 4m |
| 周辺環境 | |||
| 設備・条件 | ガスコンロ 三口コンロ システムキッチン カウンターキッチン 給湯 追い焚き 洗髪洗面化粧台 バス専用 トイレ専用 温水洗浄便座 TVドアホン プロパンガス 排水浄化槽 バルコニー | ||
| 物件番号 | hms7965 | 掲載期限日 | 2025/07/01 |
| 自社物 | 自社物 | 状態 | 売出中 |
Loading...
※物件掲載内容と現況に相違がある場合は現況を優先と致します。




























